GỢI Ý NHỮNG MẪU BẢN VẼ NHÀ CẤP 4 ĐẸP
Mẫu nhà cấp 4 đang được nhiều gia chủ ưa chuộng hiện nay, bởi tính khoa học trong cách bố trí công năng và chi phí xây dựng thấp hơn so với những mẫu nhà khác. Chính vì vậy nên Lathaco gợi ý những mẫu bản vẽ nhà cấp 4 đẹp để gia chủ tham khảo trước khi xây dựng.
1. Nhà cấp 4 là gì?

Nhà cấp 4 là gì
Nhà cấp 4 là một loại hình nhà ở khá phổ biến ở các vùng nông thôn Việt Nam. Theo quy định pháp luật nhà cấp 4 có diện tích sàn phải rộng vì số tầng bị hạn chế. Không như các kiểu nhà ở cấp 1 2 3, nhà cấp 4 có tổng diện tích sàn dưới 1000m2, không quá 1 tầng và chiều cao nhỏ hơn hoặc bằng 6m.
Nhà cấp 4 rất được yêu thích ở ngoại thành và nông thôn. Bởi diện tích xây dựng nhà cấp 4 rộng rãi thuận tiện cho việc sinh hoạt, đặc biệt là những gia đình có trẻ nhỏ, người già.
2. Ưu và nhược điểm của nhà cấp 4
Nhà cấp 4 được rất nhiều gia chủ yêu thích không thôi bởi những ưu điểm vượt trội của nó như tiết kiệm chi phí, thời gian xây dựng nhanh chóng,… Bên cạnh đó nhà cấp 4 cũng nhược điểm gì? Gia chủ hãy càng Lathaco tìm hiểu nhé!
Ưu điểm của nhà cấp 4

Ưu điểm của nhà cấp 4
- Ưu điểm đầu tiên của nhà cấp 4 là thời gian xây dựng nhanh chóng: Do yêu cầu về kiến trúc không quá phức tạp và đòi hỏi nhiều thời gian đổ mái như mẫu thiết kế biệt thự vì thế thời gian thi công ngôi nhà ngắn hắn và nhanh chóng có thể dọn vào ở được ngay sau khi hoàn thiện.
- Tiếp theo là kiến trúc đơn giản: Lối thiết kế mẫu nhà cấp 4 đơn giản đặc trưng với 3 – 4 gian không quá cầu kỳ, tạo nên nét riêng cho kiểu nhà cấp 4 vẫn đảm bảo tính thẩm mỹ, ổn định và chắc chắn cho gia chủ.
- Đa dạng phong cách: Từ kiến trúc Châu Âu đến Châu Á, mái Thái, mái Nhật,… Tất cả đều đa dạng, hài hòa và thân thiện với nền văn hóa của Việt Nam.
- Vật liệu xây dựng dễ tìm: Các nguyên vật liệu dùng để xây dựng nhà cấp 4 cũng không quá cầu kỳ nhưng vẫn đảm bảo sự an toàn, độ bền cho ngôi nhà không lo mưa bão làm hư hại.
- Chi phí xây dựng hợp lý: mức chi phí để xây dựng nên một ngôi nhà cấp 4 đẹp nhất thường có mức chi phí thấp, phù hợp với mức kinh tế của đa số các gia đình Việt.
Nhược điểm của nhà cấp 4

Nhược điểm của nhà cấp 4
- Nhược điểm đầu tiên của nhà cấp 4 là niên hạn sử dụng ngắn: Do vật liệu xây nhà cấp 4 không đòi hỏi quá về chất lượng nên đây sẽ là một trong những nhược điểm của mẫu nhà này mà các gia chủ nên cân nhắc.
- Tiện nghi sinh hoạt thấp: Do không gian và diện tích sử dụng nhà cấp 4 không được rộng lớn nên nếu gia đình đông thành viên cùng sinh sống thì sẽ khá chật chội, không thể đáp ứng đủ nhu cầu của mọi thành viên.
Hiện nay, nhà cấp 4 đã được thay đổi một cách đáng kể và kết hợp lối kiến trúc phù hợp với nhu cầu sinh hoạt hiện đại. Nhà được nâng cấp công năng sử dụng, vật liệu xây dựng chất lượng hơn cũng đã giúp niên hạn sử dụng nhà ngày càng lâu dài hơn. Vì thế, các nhược điểm của mẫu nhà cấp 4 dễ dàng được khắc phục và làm gia tăng thêm ưu điểm trong sử dụng.
3. Đặc điểm thiết kế của nhà cấp 4

Đặc điểm thiết kế của nhà cấp 4
Nhà cấp 4 mang đậm nét đặc trưng của lối kiến trúc hiện đại, được nhiều gia đình tại Việt Nam lựa chọn. Thông thường, nhà cấp 4 được thiết kế với hệ thống cửa chính lớn, cửa sổ rộng và kết hợp thêm sân vườn để tạo không gian thoáng đãng.
Đặc điểm nhà cấp 4 phổ biến hiện nay là:
- Chia theo phong cách: Nhà cấp 4 hiện đại, nhà cấp 4 có gác lửng, nhà cấp 4 mái bằng, nhà ống cấp 4, nhà cấp 4 tâm cổ điển,…
- Chia theo diện tích sàn: Nhà cấp 4 60m2, nhà cấp 4 70m2, nhà cấp 4 80m2,…
- Chia theo diện tích mặt tiền: Nhà cấp 4 mặt tiền 4m, nhà cấp 4 mặt tiền 5m, nhà cấp 4 mặt tiền 6m,…
- Chia theo hình dáng: Nhà cấp 4 chữ L, nhà cấp 4 chữ U,…
- Chia theo công năng: Nhà cấp 4 có 1 phòng ngủ, nhà cấp 4 có 2 phòng ngủ, nhà cấp 4 có 3 phòng ngủ, nhà cấp 4 có 4 phòng ngủ,…
4. Gợi ý những mẫu bản vẽ nhà cấp 4 đẹp

Gợi ý những mẫu bản vẽ nhà cấp4 đẹp
Dưới đây là một số mẫu bản vẽ nhà cấp đẹp, hiện đại gia chủ có thể tham khảo để tìm ra mẫu nhà phù hợp với siwr thích, công năng của gia đình nhé!
Mẫu bản vẽ thiết kế nhà cấp 4 2 phòng ngủ

Mẫu bản vẽ thiết kế nhà cấp 4 2 phòng ngủ
Mẫu nhà được bố trí 2 phòng ngủ với ban công nhỏ. Phòng khách và phòng ăn được thiết kế liên thông không gian mở với nhau tạo sự thoáng rộng. Phòng bếp nấu được thiết kế trong góc. Đối diện phòng khách là phòng thờ, bên cạnh phòng thờ là 2 phòng ngủ, phòng ngủ chính có thiết kế nhà vệ sinh khép kín. Nhà vệ sinh chung được thiết kế riêng ra phía góc ngoài của ngôi nhà. Thuận tiện cho không gian sinh hoạt chung.

Mẫu bản vẽ thiết kế nhà cấp 4 2 phòng ngủ
Màu sắc hài hòa, đơn giản nhưng đủ để gây ấn tượng. Bản vẽ thiết kế nhà cấp 4 đẹp có mặt tiền khá ấn tượng và đẹp mắt với kiểu Thái. Kiểu mái Thái màu nâu đen giật cấp và đua rộng không chỉ có tác dụng tăng tính thẩm mỹ cho mẫu thiết kế mà còn giúp cân đối hình khối và cân bằng không gian kiến trúc.
Mẫu bản vẽ thiết kế nhà cấp 4 3 phòng ngủ

Mẫu bản vẽ thiết kế nhà cấp 4 3 phòng ngủ
Sảnh chính mặt tiền nhà cấp 4 3 phòng ngủ thiết kế vững chãi và khỏe khoắn với hệ thống trụ cột vuông cùng những đường gờ phào trang trí chạy dọc, tạo sự nhẹ nhàng và sang trọng cho ngôi nhà. Với thiết kế mái thái không chỉ giúp căn nhà thêm cân đối và cao ráo mà còn có thể tận dụng tầng áp mái làm không gian sinh hoạt của gia đình.

Mẫu bản vẽ thiết kế nhà cấp 4 3 phòng ngủ
Đây là mẫu nhà cấp 4 có 3 phòng ngủ và một phòng thờ. Bản vẽ cho thấy mặt bằng nhà không quá rộng, phòng ngủ được phân bố ở hai phía nhà, ở giữa là phòng khách, sau phòng khách là phòng thờ nhỏ rồi phòng bếp.
Mẫu bản vẽ thiết kế nhà cấp 4 hình chữ L

Mẫu bản vẽ thiết kế nhà cấp 4 hình chữ L
Nếu ngân sách của bạn kha khá một chút, kiểu nhà cấp 4 chữ L sẽ cho bạn 2 không gian với 2 cửa lớn riêng biệt. Các phòng ngủ, phòng bếp thường được bố trí ở phía cuối nhà hoặc gần phần cửa bên hông. Vì với nhà kiểu chữ L, những vị trí đấy sẽ có không khí luôn mát mẻ.

Mẫu bản vẽ thiết kế nhà cấp 4 hình chữ L
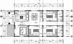
Mẫu bản vẽ thiết kế nhà cấp 4 hình chữ U
Tổng thể mặt bằng: Phòng khách, phòng thờ, bếp + phòng ăn, 4 phòng ngủ, WC. Đây là một trong những mẫu nhà cấp 4 được thiết kế sử dụng chủ yếu ở các vùng nông thôn với kiểu 3 gian. Đi vào bên trong phòng khách luôn được bố trí ở vị trí trung tâm tiếp đến phòng thờ.

Mẫu bản vẽ thiết kế nhà cấp 4 hình chữ U
Bếp và phòng ăn được ở cuối nhà tạo ra một không gian sinh hoạt chung. Mỗi phòng ngủ rộng rãi, đầy đủ tiện nghi có các cửa sổ thông thoáng, nhà vệ sinh được thiết kế hợp lý tận dụng không gian hiệu quả giúp cho quá trình thư giãn được tốt nhất.
Mẫu nhà cấp 4 hình chữ U giúp cho việc phân chia không gian bên trong. Mái ngói đỏ tươi nổi bật trên màu ghi nhẹ nhàng của ngôi nhà. Đây là sự cộng hưởng màu sắc rất yêu chuộng ở những vùng quê Việt Nam.

Mẫu bản vẽ thiết kế nhà cấp 4 hình chữ U
Mẫu bản vẽ thiết kế nhà cấp 4 có gác lửng

Mẫu bản vẽ thiết kế nhà cấp 4 có gác lửng
Nếu bạn là gia chủ có “gu”, hãy bố trí thêm căn gác lửng để tạo thêm những không gian riêng, lại tô điểm thêm sự ấn tượng bên trong nội thất ngôi nhà của bạn.
Thiết kế hệ thống cửa sổ nhỏ để lấy ánh sáng, thông thoáng không khí cho gác lửng và toàn bộ ngôi nhà. Cách thiết kế phần trước thường cao hơn phần sau là phong thủy tốt, mặt tiền đón tài lộc.

Mẫu bản vẽ thiết kế nhà cấp 4 có gác lửng
Tùy vào mục đích sử dụng mà các gia chủ lựa chọn đồ nội thất, cách bố trí nội thất sao cho hợp lý để đảm bảo công năng của không gian. Nhưng cũng phải chú ý đến màu sắc hay cửa sổ để không gian gác lửng không bị bí bách nhé các gia chủ thông thái.
Mẫu bản vẽ thiết kế nhà cấp 4 có sân vườn

Mẫu bản vẽ thiết kế nhà cấp 4 có sân vườn
Mẫu nhà cấp 4 có sân vườn đẹp thường được áp dụng cho khu vực nông thôn hoặc địa điểm có khoảng đất rộng. Thiết kế theo xu hướng xanh, phối cảnh gần gũi với thiên nhiên, kiểu nhà này sẽ mang lại cho bạn không gian tươi mới tựa như biệt thự sân vườn.
5. Công ty thiết kế và xây dựng nhà trọn gói Lathaco
Trên đây là gợi ý những bản vẽ nhà cấp 4 đẹp mà gia chủ có thể tham khảo thêm. Nếu gia chủ có thắc mắc gì hãy liên hệ ngay với chúng tôi để được giải đáp thắc mắc ngay nhé.
Với hơn 7 năm kinh nghiệm trong lĩnh vực thiết kế và xây dựng, Lathaco đảm bảo có thể mang đến cho khách hàng những mẫu thiết kế nhà đẹp hiện đại tối ưu được công năng của ngôi nhà. Mọi thắc mắc liên quan đến việc thiết kế và thi công nhà bạn có thể liên hệ trực tiếp với Lathaco thông qua:
CÔNG TY TNHH THIẾT KẾ – XÂY DỰNG – THƯƠNG MẠI LẬP THẠCH PHÁT
- Hotline: 0971.067.047
- Email: tuanlap15kt16@gmail.com
- Địa chỉ: Số 607/8/1, Tổ 11, An Thuận, Phú An, Bến Cát, Bình Dương
- Website: www.lathaco.com











