BẢN VẼ XÂY DỰNG NHÀ LÀ GÌ? CÁCH ĐỌC BẢN VẼ ĐƠN GIẢN, DỄ HIỂU
Bản vẽ xây dựng là một trong những điều cần thiết và quan trọng khi bắt tay vào thực hiện, thi công xây dựng nhà. Chính vì vậy nên gia chủ cần phải biết cách đọc bản vẽ xây dựng để có thể trao đổi cùng kiến trúc sư về các vấn đề liên quan khi xây dựng nhà. Trong bài viết này, Lathaco sẽ hướng dẫn các bạn cách đọc một bản vẽ xây dựng cho nhà đơn giản, dễ hiểu nhất.
1. Bản vẽ xây dựng nhà là gì?
Nếu không phải là người trong ngành, chắc chắn bạn sẽ thắc mắc không biết bản vẽ xây dựng là gì. Bản vẽ xây dựng là một tập hợp mặt bằng, mặt bên, mặt đứng và mặt cắt của các vật thể trong công trình được kiến trúc sư thiết kế minh họa lại bằng các ký hiệu bản vẽ theo tiêu chuẩn xây dựng Việt Nam.

Bản vẽ xây dựng nhà là gì?
Mục đích của bản vẽ xây dựng đó là cung cấp các thông số, hình ảnh để bắt tay vào thực hiện thi công, tránh sai sót, sự mô hồ hay nhầm lẫn. Thông thường các bản vẽ xây dựng đều thực hiện bằng phần mềm thiết kế chuyên dụng hoặc có khi vẽ bằng tay.
2. Vì sao cần biết cách đọc bản vẽ xây dựng nhà?
Thực tế cho thấy, có bản vẽ xây dựng sẽ giúp ích rất nhiều cho gia chủ trong quá trình thi công bởi.
- Tiết kiệm chi phí: Khi có bản vẽ xây dựng sẽ giúp bạn ước chừng được chi phí cần bỏ ra, tính toán được số lượng vật liệu cần thiết cũng như toàn bộ chi phí chi tiết trong ngôi nhà.
- Ước lượng khối lượng vật tư: Bạn có thể dựa vào bản vẽ xây dựng để chuẩn bị vật tư cần thiết, đảm bảo việc thi công được diễn ra được thuận lợi và đúng giai đoạn.
- Đảm bảo tính thẩm mỹ: Dựa vào bản vẽ xây dựng, chủ nhà sẽ phần nào hình dung được ngôi nhà, công năng của các phòng và đồ dùng. Từ đó chủ đầu tư có thể thay đổi hay sửa theo mong muốn dựa trên góp ý của kiến trúc sư để không gian sống cũng như công trình được hoàn thiện nhất.
3. Các loại bản vẽ trong xây dựng nhà
Có rất nhiều loại bản vẽ xây dựng khác nhau, gia chủ hãy cùng Lathaco tìm hiểu ngay sau đây nhé!

Các loại bản vẽ trong xây dựng nhà
- Bản vẽ phác thảo: còn gọi là bản vẽ khái niệm, đây là kiểu bản vẽ tự do, sử dụng nhanh chóng và đơn giản để khám phá những ý tưởng ban đầu cho thiết kế. Mục đích bản vẽ phác thảo dùng để điều tra và truyền đạt các nguyên tắc thiết kế cũng như khái niệm thẩm mỹ.
- Bản vẽ thi công: là bản vẽ xây dựng cung cấp thông tin về kích thước, đồ họa có thể sử dụng cho công trình. Sau đó, chúng có thể được sử dụng để phát triển và truyền đạt tóm tắt những ý tưởng đã được phê duyệt thành một thiết kế mạch lạc và phối hợp.
- Bản vẽ kỹ thuật: là một loại bản vẽ xây dựng dùng để xác định các yêu cầu về kỹ thuật sản phẩm hoặc các thành phần. Mục đích dùng để nắm bắt rõ ràng và chính xác tất cả các đặc điểm hình học của sản phẩm hoặc thành phần để nhà sản xuất hoặc kỹ sư có thể sản xuất vật phẩm cần thiết.
4. Tỷ lệ trong cách đọc bản vẽ xây dựng nhà
Tỷ lệ của bản vẽ xây dựng là tỉ số giữa kích thước đo trên hình biểu diễn và kích thước tương ứng đo trên vật thể ngoài thực tế. Các bản vẽ xây nhà thường sẽ được vẽ lại với các tỷ lệ 1:5, 1:10, 1:50, 1:100, 1:200, 1:500, 1:1000 hay 1:2000. Đây chính là tỷ số chính xác giữa kích thước đo trên hình biểu diễn và kích thước thực được đo tương ứng trên các vật thể ở thực tế.
Tùy vào quy mô công trình cũng như yêu cầu thực tế khi thiết kế để chọn tỉ lệ phù hợp. Tỉ lệ thường dùng nhất là 1:100 cho các hồ sơ thiết kế nhà, biệt thự hay nhà phố hiện đại.
5. Quy định về khung, nét vẽ và kích thước trong bản vẽ xây dựng nhà
Khi thiết kế các bản vẽ xây dựng nhà, kỹ sư sẽ sử dụng các ký hiệu thay cho các vật thể trong hiện thực, bạn cần phải nắm được những ký hiệu này thì mới có thể đọc hiểu được bản vẽ.
Quy định về khung bản vẽ và khung tên trong bản vẽ xây dựng nhà
Khung bản vẽ thiết kế nhà là một hình chữ nhật được dùng để giới hạn phần giấy và thông tin trên đó. Với khổ giấy A0 và A1, khung bên ngoài là nét liền đậm cách mép giấy sau khi xén 10mm, còn khổ giấy A2, A3, A4 là 5mm. Các bản vẽ sẽ được đóng thành tập hồ sơ, với mép trái của khung bản vẽ cách mép giấy 25mm để đóng gáy.
Phần lớn các khung tiêu đề nằm ở góc dưới và góc phải của bản vẽ còn khung tên bản vẽ kỹ thuật có thể đặt theo chiều dọc hoặc ngang. Trong đó khung tên của mỗi bản vẽ phải được đặt sao cho các chữ trên khung tên hướng lên trên hoặc sang trái bản vẽ, thuận tiện cho việc tìm kiếm và tránh bị thất lạc.
Khung tên đặt bên phải trang ngang, bản phác thảo thiết kế trên khổ giấy A3. Nội dung ở khung tên bao gồm:

Quy định về khung bản vẽ và khung tên trong bản vẽ xây dựng nhà
Quy định về nét vẽ trong cách đọc bản vẽ xây dựng nhà
Trong bản vẽ xây dựng sẽ có quy định về nét vẽ, dựa vào đó kiến trúc sư cũng như người thực hiện thi công có thể hiểu được chi tiết thông tin liên quan đến bản vẽ.

Quy định về nét vẽ trong cách đọc bản vẽ xây dựng nhà
Lưu ý: Trong trường hợp, trên bản vẽ có các nét trùng lên nhau thì thứ tự ưu tiên sẽ là nét liền đậm, nét đứt, nét chấm gạch mảnh, nét liền mảnh.
Quy định về kích thước trong cách đọc bản vẽ xây dựng nhà
Để có cách đọc bản vẽ thiết kế nhà theo đúng chuẩn, Lathaco xin chia sẻ đến quý vị và các bạn những cách ghi kích thước trên bản vẽ sau đây:

Quy định về kích thước trong cách đọc bản vẽ xây dựng nhà
Trong phần kích thước này cũng có những quy định chung đó là:
- Kích thước ghi trên bản vẽ là kích thước thật của vật thể, không phụ thuộc vào tỷ lệ của hình biểu diễn.
- Đơn vị đo kích thước dài là mm.
- Đơn vị đo cao trình là m, không ghi đơn vị sau con số kích thước.
- Đơn vị đo kích thước góc là độ, phút, giây và phải ghi đơn vị sau con số kích thước.
6. Các ký hiệu trong bản vẽ thiết kế xây dựng nhà
Dưới đây là một số ký hiệu thường gặp trong bản vẽ xây dựng nhà gia chủ cần biết trước khi đọc bản vẽ xây dựng nhé!

Các ký hiệu trong bản vẽ thiết kế xây dựng nhà

Các ký hiệu trong bản vẽ thiết kế xây dựng nhà

Các ký hiệu trong bản vẽ thiết kế xây dựng nhà
Ký hiệu cửa đi: đại diện cho các loại cửa đi như cửa đơn, cửa kép… và cách mở cánh cửa. Những ký hiệu này sẽ không liên quan đến vật liệu cũng như cấu tạo của cánh cửa hay kỹ thuật ghép, lắp dựng vào tường.

Các ký hiệu trong bản vẽ thiết kế xây dựng nhà

Các ký hiệu trong bản vẽ thiết kế xây dựng nhà
Ký hiệu cầu thang và đường dốc: Các ký hiệu này không liên quan đến vật liệu xây dựng, nó thể hiện cho tất cả các loại cầu thang và đường dốc thoải. Nếu bản vẽ có tỉ lệ 1:100 hoặc lớn hơn, ký hiệu cầu thang phải thể hiện chi tiết cả vật liệu cũng như cấu tạo theo đúng tỷ lệ tính toán của bản vẽ kết cấu nhà.

Các ký hiệu trong bản vẽ thiết kế xây dựng nhà
Ký hiệu vách ngăn: được thể hiện bằng nét liền đậm và kèm theo đó là chú thích về vật liệu. Trong trường hợp nếu bản vẽ tỉ lệ 1:50 và lớn hơn, ký hiệu vách ngăn sẽ cần thể hiện chi tiết vật liệu cũng như cấu tạo theo tỷ lệ tính toán của kết cấu.

Các ký hiệu trong bản vẽ thiết kế xây dựng nhà
Ký hiệu các bộ phận cần sửa: bạn có thể sử dụng những ký hiệu này để gán vào bộ phận sửa chữa và gắn thêm chú thích giải thích các thông số cần thiết nhất.

Các ký hiệu trong bản vẽ thiết kế xây dựng nhà
Ký hiệu vật liệu xây dựng: giúp bạn nắm được vật liệu nào sử dụng trong công trình đang thi công, từ đó bạn có thể giám sát được phần nào tiến độ công việc đang thực hiện.

Các ký hiệu trong bản vẽ thiết kế xây dựng nhà
Ký hiệu bản vẽ thiết kế nội thất: Đây là những ký hiệu đồ dùng nội thất cơ bản sử dụng trong nhà. Các ký hiệu này được vẽ trên nguyên lý mặt bằng tức là hình chiếu từ phía trên nhìn xuống với mặt cắt cao độ 900mm.

Các ký hiệu trong bản vẽ thiết kế xây dựng nhà

Các ký hiệu trong bản vẽ thiết kế xây dựng nhà

Các ký hiệu trong bản vẽ thiết kế xây dựng nhà
7. Cách đọc bản vẽ xây dựng đơn giản, dễ hiểu
Chắc chắn nhiều khách hàng sẽ băn khoăn không biết đọc như thế nào với bản vẽ xây dựng, làm thế nào để hiểu cũng như tránh được sai sót trong quá trình thi công. Kiến trúc sư của Lathaco sẽ hướng dẫn các bạn trình tự cách đọc bản vẽ xây dựng nhà:
Bước 1: Khi nhận được thiết kế hoàn chỉnh của công trình, bạn cần đọc bản vẽ tổng mặt bằng trước. Đọc phần này để biết mối liên hệ giữa các hạng mục trong ngôi nhà với nhau cũng như cảnh quan xung quanh của công trình. Cách đọc đơn giản là đọc lần lượt, đọc từ mặt bằng tầng 1, tầng 2… rồi xem đến chức năng bên trong của ngôi nhà như phòng khách, phòng ngủ, phòng bếp, phòng thờ, nhà vệ sinh, khu hành lang, cửa chính, cửa phụ.
Bước 2: Đọc bản vẽ phối cảnh để dễ hình dung và hiểu rõ được tổng thể của ngôi nhà sau khi hoàn thiện.
Bước 3: Đọc bản vẽ mặt đứng để nắm được sơ bộ hình dáng kiến trúc bên ngoài của công trình.
Bước 4: Đọc bản vẽ mặt cắt để biết không gian mỗi tầng trong công trình cần xây dựng.
Bước 5: Đọc bản vẽ kết cấu chi tiết như móng, cột, dầm, sàn, cầu thang…
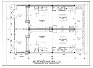
Cách đọc bản vẽ mặt bằng
Mặt bằng của công trình thể hiện các khoảng không gian như phòng ngủ, phòng khách, phòng bếp, phòng sinh hoạt chung, phòng vệ sinh, cửa đi, hành lang, cầu thang…
Khi đọc bạn cần lưu ý những điều sau về dãy kích của bản vẽ:
- Kích thước sát đường bao của mặt bằng ghi kích thước các mảng tường và các lỗ cửa.
- Dãy thứ 2 ghi kích thước khoảng cách các trục tường, trục cột,…
- Dãy ngoài cùng ghi kích thước giữa các trục tường biên theo chiều dọc hay ngang ngôi nhà.

Cách đọc bản vẽ mặt bằng
Cách đọc bản vẽ mặt đứng
Bản vẽ mặt đứng là hình cắt dùng mặt phẳng cắt song song với mặt phẳng chiếu đứng. Đối với các công trình kiến trúc thì mặt đứng là dáng bên ngoài của ngôi nhà, có thể nhìn từ trước, từ sau hay từ trái hoặc từ bên phải. Để có cách đọc bản vẽ mặt đứng chính xác cần lưu ý mặt đứng hướng ra phía nhiều người qua lại.

Cách đọc bản vẽ mặt đứng
Trong bản vẽ mặt đứng không cần ghi kích thước, nếu cần thiết kế ghi thêm tên các trục tường biên phù hợp với các trục ghi trên mặt bằng. Ví dụ mặt đứng trục A-C là hướng nhìn vào mặt tiền của ngôi nhà, mặt đứng trục 5-1 là hướng nhìn vào phía bên phải ngôi nhà, mặt đứng trục 1-5 là hướng nhìn vào phía bên trái ngôi nhà, và hướng trục C-A là hướng nhìn từ phía sau ngôi nhà. Đây là những điểm cần chú ý để có cách đọc bản vẽ xây dựng đơn giản, chính xác.
Cách đọc bản vẽ mặt cắt
Bản vẽ mặt cắt của ngôi nhà là các mặt cắt được tạo ra bằng cách sử dụng một hoặc nhiều mặt cắt dọc tưởng tượng chạy song song với các mặt phẳng hình chiếu cơ bản của ngôi nhà. Mặt cắt này cho bạn biết chiều cao của các tầng, các lỗ cửa sổ và cửa ra vào, kích thước tường, cầu thang… cũng như vị trí và hình dáng chi tiết kiến trúc ngang trang trí bên trong các phòng.
Cách đọc bản vẽ kết cấu
Trong bản vẽ kết cấu nhà sẽ sử dụng các đường chính trong bản vẽ như sau:
- Cốt chịu lực vẽ bằng nét liền đậm (s đến 2s).
- Cốt phân bố, cốt đai vẽ bằng nét liền đậm vừa (2s).
- Đường bao quanh cấu kiện vẽ bằng nét liền mảnh (3s).
- Con số ghi trước ký hiệu φ chỉ số lượng thanh thép.
- Con số đứng sau chữ L chỉ chiều dài thanh thép kể cả đoạn uốn móc ở đầu nếu có.
- Con số đứng sau chữ a chỉ khoảng cách giữa hai trục thanh thép kế tiếp cùng loại.
- Chỉ cần ghi đầy đủ đường kính, chiều dài… của thanh thép tại hình biểu diễn nào gặp thanh cốt thép đó lần đầu tiên. Các lần sau gặp lại, những thanh cốt thép đó chỉ cần ghi số ký hiệu mà thôi.
Ngoài ra thì bản vẽ xây dựng nhà còn có bản vẽ móng, bản vẽ phối cảnh, bản vẽ ổ điện, công tắc điện, bản vẽ công năng nội thất,… gia chủ có thể tìm hiểu thêm để biết cách sắp xếp cho hợp lý nhé.
8. Những lưu ý khi đọc bản vẽ xây nhà

Những lưu ý khi đọc bản vẽ xây nhà
Khi đọc bản vẽ xây nhà các bạn chú ý đọc theo đúng trình tự, đầu tiên khi nhận được bản vẽ hoàn chỉnh, hãy xem bản vẽ tổng mặt bằng trước, sau đó mới xem tới các bản vẽ chi tiết khác. Điều này sẽ giúp bạn xác định được mối liên hệ giữa các hạng mục được xây dựng trong ngôi nhà của mình.
Để đọc đơn giản nhất thì gia chủ nên đọc lần lượt từ tầng 1 đến tầng 2 và các tầng phía trên (nếu có), sau đó xem chức năng bên trong của ngôi nhà theo từng phòng từ phòng khách, phòng ngủ cho đến phòng bếp, phòng thờ và phòng vệ sinh, hành lang cũng như các cửa chính, cửa phụ.
Rồi sau đó đọc bản vẽ phối cảnh, bản vẽ này sẽ giúp bạn hình dung được tổng thể ngôi nhà sẽ trông như thế nào sau khi hoàn thiện. Tiếp đến là bản vẽ mặt đứng để nắm hình dáng kiến trúc phần bên ngoài, bản vẽ mặt cắt để hiểu rõ không gian các tầng trong công trình. Cuối cùng cần đọc chính là bản vẽ kết cấu, và nhớ đừng bỏ qua các thông số như móng, cột, dầm, sàn, cầu thang,…
9. Công ty thiết kế và xây dựng nhà trọn gói tại Bình Dương Lathaco
Với những thông tin ở trên mà Lathaco đã cung cấp giúp bạn có thể đọc bản vẽ xây dựng nhà một cách đơn giản, chính xác. Để có thể hiểu rõ hơn về thiết kế và phần nào theo dõi công việc đang thực hiện ở mức độ nào.
Đặc biệt khi lựa chọn Lathaco thiết kế và thi công nhà thì khách hàng yên tâm các kiến trúc sư, kỹ sư sẽ tận tình hướng dẫn rõ hơn cho gia chủ xem bản vẽ xây dựng nhà. Nếu trong suốt quá trình thi công khách hàng có gì thắc sẽ được đội ngũ kiến trúc sư giàu kinh nghiệm giải đáp và tư vấn.
Với kinh nghiệm hơn 7 năm trong nghề và hoàn thành nhiều dự án lớn nhỏ. Lathaco tự hào là đơn vị uy tín chất lượng. Gia chủ còn chần chờ gì nữa mà không liên hệ ngay với Lathaco để được tư vấn thiết kế và thi công xây dựng một cách nhanh nhất, anh/chị và các bạn có thể liên hệ:
CÔNG TY TNHH THIẾT KẾ – XÂY DỰNG – THƯƠNG MẠI LẬP THẠCH PHÁT
- Hotline: 0971.067.047
- Email: tuanlap15kt16@gmail.com
- Địa chỉ: Số 607/8/1, Tổ 11, An Thuận, Phú An, Bến Cát, Bình Dương
- Website: www.lathaco.com











