DỰ ÁN THIẾT KẾ XÂY VÀ DỰNG NHÀ MÁI NHẬT TRỌN GÓI THEO PHONG CÁCH HIỆN ĐẠI CHO GIA ĐÌNH NHÀ CHÚ THỊNH, QUẢNG BÌNH
Mẫu nhà cấp 4 mái Nhật là một trong những kiến trúc phổ biến, nhất là ở những vùng ngoại ô. Đây cũng là xu hướng được nhiều gia chủ lựa chọn trong năm nay. Hãy cùng chúng tôi khám phá công trình nhà cấp 4 mái Nhật gia đình nhà chú Thịnh, Quảng Bình với phong cách hiện đại dưới đây để góp thêm một phần trong những ý tưởng cho dự án nhà mới của các bạn nhé.
1. Thông tin dự án – Nhà Cấp 4 Mái Nhật
Khách hàng: Chú Thịnh
Địa chỉ: Quảng Bình
Phong cách thiết kế: Nhà cấp 4 mái Nhật
Diện tích xây dựng: 20m x 10m
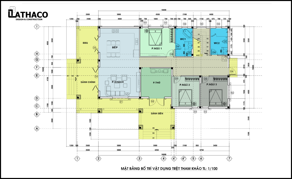
Kết cấu ngôi nhà: gồm sảnh chính, sảnh bên, khu vực BBQ, 1 phòng khách, 1 phòng thờ, 1 khu vực bếp, 3 phòng ngủ, 2 WC.
Bản vẽ thiết kế
- Với kiến trúc hiện đại, không gian mở cho gia đình nhiều thành viên với 3 phòng rộng rãi, tạo ngôi nhà vừa thông thoáng lại mang cảm giác ấn tượng, độc đáo khi bước vào ngôi nhà.
- Mặt bằng không gian được chia làm 2 và được ngăn cách bằng hành lang liên thông. Từ sảnh chính đi vào là phòng khách, kế bên là phòng bếp.
- Phía sau phòng khách và phòng bếp là khu vực của phòng thờ và ba phòng ngủ. Phòng thờ nối với sảnh bên thuận tiện khi ra vào thắp hương.
- Nhà vệ sinh được thiết kế cuối dãy nhà, 1 nhà vệ sinh phòng ngủ chính và 1 nhà vệ sinh dùng chung cho cả gia đình.
2. Thiết kế nhà cấp 4 mái Nhật phong cách hiện đại
Bản vẽ phối cảnh thiết kế nhà cấp 4 mái Nhật mặt trước

Bản vẽ phối cảnh thiết kế nhà cấp 4 mái Nhật từ trên cao
Nhà cấp 4 mái Nhật vô cùng độc đáo, nó sở hữu những ưu điểm rất nổi bật mà nhiều kiểu nhà khác không có được. Loại nhà này được thiết kế với kết cấu nhà cấp 4 đơn giản, nhưng đảm bảo được sự chắc chắn và sang trọng thể hiện phong cách gia chủ.
Các ưu điểm của nhà mái Nhật cấp 4 với 3 phòng ngủ
- Thời gian xây dựng một ngôi nhà cấp 4 mái Nhật khá ngắn giúp cho gia chủ có thể sở hữu căn nhà mơ ước một cách nhanh chóng.
- Mẫu nhà cấp 4 mái Nhật này giúp cho gia chủ có thể tiết kiệm được chi phí xây dựng cũng như không bị mất quá nhiều thời gian trong việc dọn dẹp và sắp xếp đồ đạc. Bên cạnh đó, thích hợp và đảm bảo an toàn cho những gia đình có người lớn tuổi chung sống.
- Thiết kế nhà cấp 4 với 3 phòng ngủ rộng rãi và đầy đủ công năng, phù hợp với những gia đình có đông thành viên, hoặc có chỗ ngủ rộng rãi nếu có khách ghé thăm.
- Chi phí để xây dựng một ngôi nhà mái Nhật không quá cao, thích hợp với mức thu nhập của tất cả các khách hàng từ thấp đến cao, đáp ứng được những nhu cầu khác nhau của hầu hết các gia đình.
- Nhà mái Nhật mang vẻ đẹp hiện đại, không bị lỗi thời qua các năm, mẫu mã đa dạng với nhiều màu sắc và kiểu dáng. Chủ nhà thoải mái lựa chọn bất cứ màu nào phù hợp với bản mệnh cũng như phong thủy.
3. Thiết kế nội thất của mẫu nhà cấp 4 mái Nhật mang phong cách hiện đại
Thiết kế nội thất phòng khách sang trọng
Phòng khách luôn được các gia chủ đặc biệt chú ý, vì nó là nơi cho các thành viên quay quần bên nhau và cũng là nơi tiếp đón khách quý. Ngôi nhà đẹp hay xấu được đánh giá chủ yếu ở phòng khách.
Căn phòng mẫu nhà cấp 4 với 3 phòng ngủ với tông màu trắng chủ đạo, làm nổi bật nội thất gỗ tự nhiên. Bộ ghế sofa gỗ đặt ngay trung tâm phòng, dưới ghế lót tấm thảm vải màu xám tô điểm cho khu vực bàn trà thêm sang trọng. Hệ thống đèn Led cùng đèn treo, cũng làm không gian phòng khách đẹp và hiện đại.

Thiết kế nội thất phòng khách nhà cấp 4 mái Nhật sang trọng
Thiết kế nội thất phòng ngủ hiện đại ấm áp
Phòng ngủ được bố trí nội thất tối giản, cùng thiết kế với các tủ âm tường nhằm tăng diện tích không gian.
Tông màu trầm ấm, tạo cho căn phòng thêm cảm giác ấm áp nhưng không kém phần sang trọng. Chiếc giường gỗ đặt ngay giữa phòng vừa thư giãn cũng góp phần tạo điểm nhấn cho khu vực ngủ không trở nên nhàm chán.

Thiết kế nội thất phòng ngủ 1

Thiết kế nội thất phòng ngủ 2

Thiết kế nội thất phòng ngủ 3
Thiết kế nội thất phòng bếp hiện đại
Trong mỗi ngôi nhà, căn bếp luôn giữ một vai trò khá quan trọng. Vì nó không chỉ là nơi nấu ăn mà còn là nơi giữ lửa cho một gia đình hạnh phúc. Vì thế bếp là nơi rất được gia chủ quan tâm đến.
Vẻ đẹp của phòng bếp toát lên vẻ đẹp tinh tế nhờ vào tông màu trắng kết hợp màu gỗ đầy sang trọng. Hệ thống tủ bếp được làm hình chữ L ôm sát tường và thiết kế nhiều ngăn rộng để dễ đựng những dụng cụ nấu lớn. Vì thế, mặc dù phòng bếp với nhiều đồ dùng nhưng vẫn ngăn nắp.
Với hệ thống đèn Led, đèn âm trần cùng đèn treo trang trí, giúp cung cấp ánh sáng cũng như tạo thêm nét đẹp trang nhã cho căn phòng.

Thiết kế nội thất phòng tiện tiện lợi
Thiết kế nội thất phòng tắm hiện đại
Nhà vệ sinh tinh tế với đồ dùng hiện đại. Tường được ốp đá hoa cương để không bị ẩm mốc và luôn sạch sẽ.
Khu vực tắm được ngăn cách riêng bởi kính cường lực trong suốt. Bên cạnh đó, căn phòng cũng trang trí thêm gương lớn để sinh động và thuận tiện hơn.

Thiết kế nội thất phòng tắm sang trọng
Thiết kế nội thất phòng thờ
Phòng thờ là nơi con cháu thể hiện sự tôn kính đối với tổ tiên, ông bà nên vị trí đặt phòng thờ phải là vị trí quan trọng nhất trong nhà. Việc đặt phòng thờ ở một vị trí thích hợp còn giúp cho ngôi nhà thu hút được nhiều tài lộc, may mắn.

Thiết kế nội thất phòng thờ đẹp
4. Công ty thiết kế và xây dựng nhà trọn gói tại Bình Dương Lathaco
Để có được một căn nhà đẹp ưng ý, việc lựa chọn đơn vị thiết kế và thi công nhà là vô cùng quan trọng. Lathaco tự hào là đơn vị thiết kế thi công xây dựng hàng đầu tại Bình Dương.
Với hơn 7 năm kinh nghiệm, Lathaco sở hữu đội ngũ Kiến Trúc Sư, Kỹ Sư dày dặn kinh nghiệm có sự sáng tạo và thẩm mỹ cao, thi công xây dựng chất lượng và dịch vụ chuyên nghiệp. Đơn vị tự hào mang lại cho nhiều gia chủ những công trình xây dựng chất lượng, những thiết kế biệt thự sở hữu không gian sống đầy tiện nghi theo sở thích riêng của từng gia chủ.
Để được tư vấn thiết kế và thi công xây dựng một cách nhanh nhất, đảm bảo hiện thực hóa được đúng nhu cầu và sở thích của gia đình, anh chị và các bạn có thể liên hệ:
CÔNG TY TNHH THIẾT KẾ – XÂY DỰNG – THƯƠNG MẠI LẬP THẠCH PHÁT
- Hotline: 0971.067.047
- Email: tuanlap15kt16@gmail.com
- Địa chỉ: Số 607/8/1, Tổ 11, An Thuận, Phú An, Bến Cát, Bình Dương
- Website: www.lathaco.com


