DỰ ÁN THIẾT KẾ VÀ XÂY DỰNG NHÀ CẤP 4 TRỌN GÓI – CHỊ MAI, QUẢNG BÌNH
Đây là một ngôi nhà được thực hiện theo phong cách thiết kế hiện đại được Lathaco thực hiện thiết kế và thi công cho gia đình Chị Mai tại Quảng Bình. Mời các anh, chị và các bạn cùng xem và trải nghiệm qua sản phẩm này nhé.
1. Thông tin dự án – Nhà Cấp 4 Mái Thái
Khách hàng: Chị Mai
Địa chỉ: Quảng Bình
Phong cách thiết kế: Nhà cấp 4 mái Thái
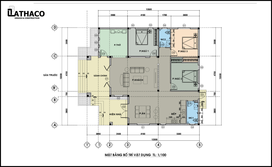
Diện tích xây dựng: 13m x 15m
Kết cấu ngôi nhà: gồm sảnh chính, 1 phòng khách, 1 phòng thờ, 1 khu vực bếp, 3 phòng ngủ, 2 WC, sân trước, sân sau.

Bản vẽ thiết kế nhà cấp 4 mái Thái cho gia đình chị Mai
- Trước khi vào nhà sẽ có một khoảng sân nhỏ, để làm giảm bớt hiệu ứng nắng gắt trước khi vào nhà. Bên trái là phòng thờ trang nghiêm, hợp hướng phong thủy với gia chủ.
- Tiếp đến là không gian phòng khách rộng rãi và bên phải là phòng ăn lớn để các thành viên có thể cùng nhau dùng bữa. Khu vực bếp chữ L rộng rãi thuận tiện cho việc nấu nướng và có 1 nhà vệ sinh riêng.
- Thiết kế 3 phòng ngủ lớn rộng rãi với nội thất tiện nghi và sử dụng chung 1 nhà vệ sinh ở bên ngoài.
2. Thiết kế nhà cấp 4 mái Thái phong cách hiện đại

Bản vẽ phối cảnh thiết kế nhà cấp 4 mái Thái
Mẫu nhà cấp 4 với lối thiết kế tối giản nhưng không vì thế mà làm mất đi vẻ sang trọng và lộng lẫy của ngôi nhà. Các kiến trúc sư đã vận dụng những hình khối trong thiết kế để khiến cho người xem tạo thấy một ngôi nhà rộng hơn, sử dụng triệt để diện tích và tối ưu không gian cho ngôi nhà. Và sử dụng một số họa tiết cho phần cột và ốp đá hoa cương, điều này góp phần tạo nên sự lộng lẫy cho mẫu nhà này.
Các ưu điểm của nhà mái Thái cấp 4
- Mẫu nhà cấp 4 mái Thái này giúp cho gia chủ có thể tiết kiệm được chi phí xây dựng cũng như không bị mất quá nhiều thời gian trong việc dọn dẹp và sắp xếp đồ đạc. Bên cạnh đó, thích hợp và đảm bảo an toàn cho những gia đình có người lớn tuổi chung sống.
- Chi phí để xây dựng một ngôi nhà mái Thái không quá cao, thích hợp với mức thu nhập của tất cả các khách hàng từ thấp đến cao, đáp ứng được những nhu cầu khác nhau của hầu hết các gia đình.
- Nhà mái Thái mang vẻ đẹp hiện đại, không bị lỗi thời qua các năm, mẫu mã đa dạng với nhiều màu sắc và kiểu dáng. Chủ nhà thoải mái lựa chọn bất cứ màu nào phù hợp với bản mệnh cũng như phong thủy.
- Thời gian xây dựng một ngôi nhà cấp 4 mái Thái khá ngắn giúp cho gia chủ có thể sở hữu căn nhà mơ ước một cách nhanh chóng.
3. Thiết kế nội thất của mẫu nhà cấp 4 mái Thái mang phong cách hiện đại
3.1. Nội thất phòng khách mẫu nhà cấp 4 mái Thái
Phòng khách luôn là không gian rộng rãi nhất trong căn nhà cấp 4 và bạn có thể thiết kế liền với không gian phòng ăn để tăng diện tích sử dụng, tạo ra sự thoáng đãng và đẹp mắt nhất.

Gợi ý thiết kế nội thất phòng khách
3.2. Thiết kế nội thất phòng bếp
Tủ bếp chữ L được bố trí gọn gàng, giúp phòng bến luôn được sạch sẽ và ngăn nắp. Một bộ bàn ăn đối diện với bếp, giúp tạo không gian ấm cúng, các thành viên có thể vừa nấu ăn và vừa trò chuyện cùng nhau.

Thiết kế nội thất phòng bếp ấm cúng tiện lợi
3.3. Thiết kế nội thất phòng ngủ
Phòng ngủ của nhà cấp 4 cũng được trang trí nội thất theo phong cách hiện đại và gam màu chủ đạo của căn nhà. Diện tích rộng cho phép đi thèm cùng tủ quần áo, tranh treo tường trang trí, bàn làm việc và cửa sổ thông thoáng.

Thiết kế nội thất phòng ngủ 1

Thiết kế nội thất phòng ngủ 2

Thiết kế nội thất phòng ngủ 3
3.4. Thiết kế nội thất phòng thờ
Phòng thờ chính là nơi con cháu thể hiện sự tôn kính đối với tổ tiên, ông bà nên vị trí đặt phòng thờ phải là vị trí quan trọng nhất trong nhà. Việc đặt phòng thờ ở một vị trí thích hợp còn giúp cho ngôi nhà thu hút được nhiều tài lộc, may mắn. Ở các ngôi nhà truyền thống, vị trí đặt phòng thờ thường là nơi tiếp khách để thuận tiện cho việc khách đến nhà và cúng viếng tổ tiên.

Gợi ý thiết kế nội thất phòng thờ
3.5. Thiết kế nội thất phòng tắm
Phòng tắm kính được thiết kế tạo vách ngăn trong nhà tắm bằng kính cường lực với mục đích đảm bảo sự khô thoáng, sạch sẽ cho không gian. Mẫu phòng tắm kính đẹp hiện đang là xu hướng, là sự lựa chọn tối ưu nhất cho mọi gia đình Việt hiện nay.

Gợi ý thiết kế phòng tắm đẹp tiện nghi
4. Công ty thiết kế và xây dựng nhà trọn gói tại Bình Dương Lathaco
Để có được một căn nhà đẹp ưng ý, việc lựa chọn đơn vị thiết kế và thi công nhà là vô cùng quan trọng. Lathaco tự hào là đơn vị thiết kế thi công xây dựng hàng đầu tại Bình Dương.
Với hơn 7 năm kinh nghiệm, Lathaco sở hữu đội ngũ Kiến Trúc Sư, Kỹ Sư dày dặn kinh nghiệm có sự sáng tạo và thẩm mỹ cao, thi công xây dựng chất lượng và dịch vụ chuyên nghiệp. Đơn vị tự hào mang lại cho nhiều gia chủ những công trình xây dựng chất lượng, những thiết kế biệt thự sở hữu không gian sống đầy tiện nghi theo sở thích riêng của từng gia chủ.
Để được tư vấn thiết kế và thi công xây dựng một cách nhanh nhất, đảm bảo hiện thực hóa được đúng nhu cầu và sở thích của gia đình, anh chị và các bạn có thể liên hệ:
CÔNG TY TNHH THIẾT KẾ – XÂY DỰNG – THƯƠNG MẠI LẬP THẠCH PHÁT
- Hotline: 0971.067.047
- Email: tuanlap15kt16@gmail.com
- Địa chỉ: Số 607/8/1, Tổ 11, An Thuận, Phú An, Bến Cát, Bình Dương
- Website: www.lathaco.com


