Dự án thiết kế và xây dựng nhà mái Thái trọn gói theo phong cách tân cổ điển cho gia đình anh Nhân, Phú An, Bến Cát, Bình Dương

2202 lượt xem
Đánh giá bài viết:
1 sao2 sao3 sao4 sao5 sao (1 votes, average: 5,00 out of 5)
Loading...
[thong-tin-them]

DỰ ÁN THIẾT KẾ VÀ XÂY DỰNG NHÀ MÁI THÁI TRỌN GÓI THEO PHONG CÁCH TÂN CỔ ĐIỂN CHO GIA ĐÌNH ANH NHÂN, PHÚ AN, BẾN CÁT, BÌNH DƯƠNG

Nhà mái thái tân cổ điển 2 tầng là một lựa chọn phổ biến cho nhiều gia đình hiện nay. Mẫu nhà này là sự kết hợp giữa phong cách cổ điển với thiết kế hiện đại, tạo nên một không gian sống sang trọng và đẳng cấp. Anh Nhân đã tin tưởng trao cơ hội cho đội ngũ Lathaco thiết kế và xây dựng trọn gói ngôi nhà của mình.

1. Thông tin dự án – Nhà Phố 2 Tầng Mái Thái

Khách hàng: Anh Nhân

Địa chỉ: Phú Cát – Bình Dương

Phong cách thiết kế: Nhà phố Mái Thái 2 tầng – phong cách tân cổ điển

Diện tích xây dựng: 5m x 20.5m

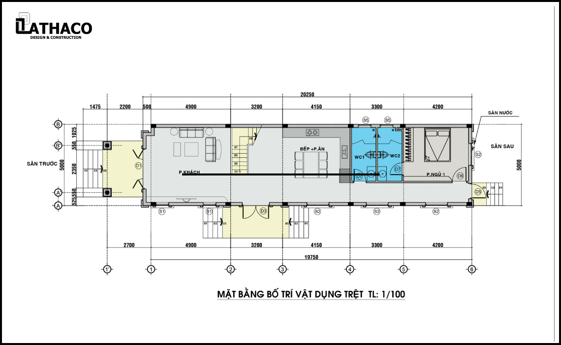
Kết cấu ngôi nhà: nhà 2 tầng gồm 3 phòng ngủ, 1 phòng khách, 1 phòng thờ, 1 khu vực bếp, 4 WC, Sân trước, sân sau và 3 Ban công.

Bản vẽ thiết kế tầng trệt

Bản vẽ thiết kế tầng lầu

2. Thiết kế nhà phố mái Thái phong cách tân cổ điển

Mẫu nhà tân cổ điển 2 tầng mái Thái là sự kết hợp hài hòa giữa phong cách tân cổ điển và kiến trúc mái Thái truyền thống. Đặc điểm của kiến trúc mái Thái là mái nhà hình chữ A, với độ dốc lớn, tạo cảm giác thoáng mát và thoải mái. Các họa tiết trang trí được chạm khắc tinh xảo trên cột và dầm của nhà tạo nên vẻ đẹp độc đáo.

Mẫu thiết kế nhà 2 tầng mái Thái phong cách Tân Cổ Điển

  • Thẩm mỹ cao: Với kiểu dáng tân cổ điển đặc trưng, ngôi nhà 2 tầng mang đến sự thanh lịch, tinh tế và sang trọng. Những đường nét hoa văn trang trí ấn tượng, hệ cột trụ hay mái nhà đều tạo nên một vẻ đẹp hoàn mỹ và độc đáo.
  • Thiết kế tiện nghi: Không chỉ mang tính thẩm mỹ cao, những ngôi nhà tân cổ điển 2 tầng còn được thiết kế đầy đủ công năng, đáp ứng nhu cầu sử dụng của các thành viên trong gia đình mang đến sự tiện nghi và thoải mái khi sử dụng.
  • Độ bền cao: Mẫu nhà phố tân cổ điển 2 tầng được xây dựng với các vật liệu chất lượng cùng kiến trúc cổ điển vững chắc, mang lại độ bền cao cho căn nhà.

Thiết kế phối cảnh nhà mái Thái 2 Tầng

3. Thiết kế nội thất phong cách tân cổ điển

Với thiết kế nhà tân cổ điển 2 tầng, việc lựa chọn nội thất đúng phong cách sẽ giúp tăng thêm sự sang trọng và đẳng cấp cho không gian sống. 

3.1. Nội thất phòng khách nhà tân cổ điển 2 tầng

Thiết kế phòng khách phong cách tân cổ điển

Đây là nơi tiếp đón khách và tạo ra ấn tượng đầu tiên về không gian sống của gia chủ. Trong thiết kế nội thất phòng khách cho nhà tân cổ điển 2 tầng, những bộ sofa sang trọng với chất liệu da, gỗ tự nhiên,… Nếu có sử dụng các hoa văn trang trí thì cần lưu ý để tạo nên sự đồng bộ với các vật dụng khác như bàn trà, kệ tivi,… Để tạo thêm điểm nhấn cho không gian phòng khách, các tấm tranh nghệ thuật, chậu cây trang trí góp phần tăng sự sinh động và đẹp mắt.

3.2. Nội thất phòng bếp nhà phố tân cổ điển 2 tầng

Thiết kế phòng khách phong cách Tân Cổ Điển

Phòng bếp, không gian sinh hoạt chung và là nơi vun đắp hạnh phúc gia đình. Chính vì vậy, khi thiết kế nội thất tại khu vực này cần đảm bảo sự tiện nghi, đáp ứng nhu cầu sử dụng của các thành viên. Trong không gian phòng bếp của nhà tân cổ điển 2 tầng, đồ nội thất bằng gỗ tự nhiên, đá granite hoặc marble thường được ưu tiên sử dụng bởi mang đến giá trị thẩm mỹ cao và thể hiện đẳng cấp của chủ đầu tư.

3.3. Nội thất phòng ngủ nhà 2 tầng tân cổ điển

Thiết kế phòng ngủ phong cách tân cổ điển

Phòng ngủ là không gian nghỉ ngơi, thư giãn và tái tạo năng lượng sau ngày dài làm việc, do đó thiết kế nội thất phòng ngủ nắm giữ vai trò quan trọng mang đến giá trị thẩm mỹ và giấc ngủ ngon cho gia chủ. Với những căn nhà tân cổ điển 2 tầng, nội thất phòng ngủ thường được thiết kế đơn giản, sang trọng, tạo cảm giác ấm cúng và thư thái.

3.4. Nội thất WC nhà tân cổ điển 2 tầng

Thiết kế WC phong cách Tân Cổ Điển

Để phù hợp với phong cách tân cổ điển, nội thất phòng vệ sinh cần được chú trọng nhằm mang đến sự thanh lịch, sang trọng và đẳng cấp. Việc lựa chọn thiết bị và trang trí cần phải cân nhắc kỹ lưỡng từ màu sắc, chất liệu nội thất đến cách bài trí vật dụng tạo nên sự đồng bộ với tổng thể ngôi nhà. 

4. Công ty thiết kế và xây dựng nhà trọn gói tại Bình Dương Lathaco

Để có được một căn nhà đẹp ưng ý, việc lựa chọn đơn vị thiết kế và thi công nhà là vô cùng quan trọng. Lathaco tự hào là đơn vị thiết kế thi công xây dựng hàng đầu tại Bình Dương.

Với hơn 7 năm kinh nghiệm, Lathaco sở hữu đội ngũ Kiến Trúc Sư, Kỹ Sư dày dặn kinh nghiệm có sự sáng tạo và thẩm mỹ cao, thi công xây dựng chất lượng và dịch vụ chuyên nghiệp. Đơn vị tự hào mang lại cho nhiều gia chủ những công trình xây dựng chất lượng, những thiết kế biệt thự sở hữu không gian sống đầy tiện nghi theo sở thích riêng của từng gia chủ.

Để được tư vấn thiết kế và thi công xây dựng một cách nhanh nhất, đảm bảo hiện thực hóa được đúng nhu cầu và sở thích của gia đình, anh chị và các bạn có thể liên hệ:

NG TY TNHH THIẾT KẾ – XÂY DỰNG – THƯƠNG MẠI LẬP THẠCH PHÁT

  • Hotline: 0971.067.047
  • Email: tuanlap15kt16@gmail.com
  • Địa chỉ: Số 607/8/1, Tổ 11, An Thuận, Phú An, Bến Cát, Bình Dương
  • Website: www.lathaco.com

    Gửi yêu cầu tư vấn miễn phí


    Quý khách hàng có thể gửi yêu cầu để chúng tôi tư vấn miễn phí tại đây. Yêu cầu tư vấn của bạn sẽ được gửi tới các chuyên gia của chúng tôi. Chúng tôi sẽ trả lời sớm nhất có thể thông qua Email, SĐT hoặc địa chỉ liên hệ. Xin cảm ơn!




    Lưu ý: Các thông tin bạn cung cấp càng chi tiết thì chúng tôi càng có cơ sở để đưa ra phương án tối ưu hơn.


    Gợi ý viết yêu cầu: Địa chỉ khu đất, diện tích đất, kích thước các cạnh. Loại hình bạn lựa chọn (biệt thự, nhà phố …) Bạn định xây mấy tầng. Mỗi tầng bạn yêu cầu các phòng nào, không gian nào. Số tiền dự kiến ...

    Trả lời

    Email của bạn sẽ không được hiển thị công khai. Các trường bắt buộc được đánh dấu *