DỰ ÁN THIẾT KẾ VÀ XÂY DỰNG NHÀ PHỐ 3 TẦNG TRỌN GÓI VỚI THIẾT KẾ ĐẸP CÓ HẦM ĐỂ XE NHÀ CHỊ LUYÊN, PHÚ TÂN, THỦ DẦU MỘT
Vợ chồng tôi có một con trai, một con gái, định xây nhà trên khuôn viên hơn 100m2 (5×20, 3m). Gia đình cần tối thiểu 4 phòng ngủ, phòng khách, phòng sinh hoạt chung, phòng thờ và có hầm xe trong nhà. Nắm được yêu cầu của gia chủ, Lathaco đã thiết kế và xây dựng trọn gói cho nhà chị Luyên mẫu nhà phố 3 tầng
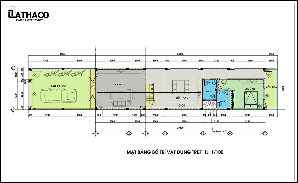
1. Thông tin dự án – Nhà Phố 3 tầng
Khách hàng: Chị Luyên
Địa chỉ: Phú Tân – Bình Dương
Phong cách thiết kế: Nhà phố 3 tầng có hầm xe mang phong cách hiện đại
Diện tích xây dựng: 5m x 20,3m
Kết cấu ngôi nhà:

Tầng 1: Sân trước, Hầm để xe, Phòng Khách, Phòng Bếp + Ăn, 2 WC, 1PN, 1 Sân Sau

Tầng 2: 3PN, 3WC, 1 Ban Công trước, 1 Ban Công Sau

Tầng 3: 1PN, 1 Phòng Karaoke, 1 Sân Thượng, 1 Sân Phơi
2. Thiết kế nhà Nhà Phố 3 tầng có hầm xe mang phong cách hiện đại
Mẫu nhà 3 tầng mái thái này phù hợp với những gia đình có từ 4 thành viên trở lên, vì sở hữu một không gian khá thoải mái. Cách bố trí các thiết kế các thiết bị nội thất cùng xử lý ánh sáng, không gian đem lại sự tiện nghi và thoải mái nhất cho gia chủ.

Mẫu thiết kế phối cảnh nhà phố 3 tầng
Ưu điểm của nhà phố 3 tầng mái Thái
Nhà ống mái thái là những ngôi nhà được xây dựng theo hình chữ nhật, diện tích chiều ngang nhỏ, hẹp hơn rất nhiều so với chiều dài. Đồng thời, phần mái được thiết kế từ hình chữ A đặc trưng, độ dốc vừa phải.
- Về công năng: nhà ống mái thái có tính năng tản nhiệt, chống nóng tốt hơn mái bằng. Nhờ có độ dốc vừa phải nên mái thoát nước nhanh, không bị ứ đọng. Nhờ đó, ngôi nhà được bảo vệ tốt, không bị thấm dột, độ bền công trình cao hơn.
- Về thiết kế: Nhà ống 3 tầng mái thái đẹp có nhiều kiểu dáng cách điệu phù hợp với thị hiểu khách hàng.
- Về tính thẩm mỹ: kiến trúc nhà ống mái thái giúp công trình trở nên sang trọng, vững chãi.

Mẫu phối cảnh hong nhà 3 tầng
3. Thiết kế nội thất của mẫu nhà phố 3 có hầm xe mang phong cách hiện đại
Nhà có màu chủ đạo là trắng và nâu nhưng gia chủ nên bổ sung các sắc độ khác của hai tông màu này để không gian vẫn sáng nhưng không bị lạnh lẽo. Đó có thể là màu kem, be hoặc nâu đậm nhạt khác nhau.

Mẫu thiết kế nội thất phòng khách
Bếp ăn đơn giản, gọn gàng liên thông với phòng khách và có cửa mở ra phía sân vườn bên hông và sau nhà.

Mẫu thiết kế nội thất phòng bếp
Ngoài phòng khách ở tầng một, gia chủ muốn có thêm không gian sinh hoạt chung bố trí ở tầng 2. Đó là nơi gia đình có thể treo những tranh ảnh kỷ niệm tạo cảm giác ấm áp, thân thiết.

Mẫu thiết kế nội thất phòng sinh hoạt chung
Phòng ngủ của bố mẹ có nội thất nâu đậm hợp với sở thích của chủ hộ, thêm ánh sáng màu vàng ấm cúng.

Mẫu thiết kế nội thất phòng ngủ
Con gái 15 tuổi thích màu xanh được toại nguyện với nội thất mang tính chất tân cổ điển mềm mại.

Mẫu thiết kế nội thất phòng ngủ con gái
Phòng ngủ của con trai có thiết kế đơn giản hơn với sự kết hợp của màu ghi xám và đồ gỗ sáng màu.

Mẫu thiết kế nội thất phòng ngủ con trai
Phòng thờ được bố trí ở tầng thượng trên cùng với hướng nhìn ra sân thoáng rộng.

Mẫu thiết kế nội thất phòng thờ
4. Công ty thiết kế và xây dựng nhà trọn gói tại Bình Dương Lathaco
Để có được một căn nhà đẹp ưng ý, việc lựa chọn đơn vị thiết kế và thi công nhà là vô cùng quan trọng. Lathaco tự hào là đơn vị thiết kế thi công xây dựng hàng đầu tại Bình Dương.
Với hơn 7 năm kinh nghiệm, Lathaco sở hữu đội ngũ Kiến Trúc Sư, Kỹ Sư dày dặn kinh nghiệm có sự sáng tạo và thẩm mỹ cao, thi công xây dựng chất lượng và dịch vụ chuyên nghiệp. Đơn vị tự hào mang lại cho nhiều gia chủ những công trình xây dựng chất lượng, những thiết kế biệt thự sở hữu không gian sống đầy tiện nghi theo sở thích riêng của từng gia chủ.
Để được tư vấn thiết kế và thi công xây dựng một cách nhanh nhất, đảm bảo hiện thực hóa được đúng nhu cầu và sở thích của gia đình, anh chị và các bạn có thể liên hệ:
CÔNG TY TNHH THIẾT KẾ – XÂY DỰNG – THƯƠNG MẠI LẬP THẠCH PHÁT
- Hotline: 0971.067.047
- Email: tuanlap15kt16@gmail.com
- Địa chỉ: Số 607/8/1, Tổ 11, An Thuận, Phú An, Bến Cát, Bình Dương
- Website: www.lathaco.com




