DỰ ÁN THIẾT KẾ VÀ XÂY DỰNG NHÀ 1 TRỆT 1 LẦU TRỌN GÓI THEO PHONG CÁCH HIỆN ĐẠI SANG TRỌNG NHÀ ANH THÁI, PHÚ AN, BẾN CÁT, BÌNH DƯƠNG
Hiện nay trên thị trường có rất nhiều mẫu thiết kế nhà 1 trệt 1 lầu mái thái phong phú, đa dạng. Tuy nhiên, Nhà phố mái thái phong cách hiện đại được mọi mọi người mà ngày càng được nhiều gia đình lựa chọn nhờ Mẫu nhà 1 trệt 1 lầu mái thái này giúp cho gia chủ có thể tiết kiệm được chi phí cũng như tối ưu diện tích. Chính vì điều đó, anh Thái đã tin tưởng giao cho đội ngũ Lathaco để thiết kế và xây dựng nhà trọn gói cho mình.
1. Thông tin dự án – Nhà Phố 1 trệt 1 lầu Mái Thái
Khách hàng: Anh Thái
Địa chỉ: Phú Cát – Bình Dương
Phong cách thiết kế: Nhà phố Mái Thái 1 trệt 1 lầu
Diện tích xây dựng: 5,4m x 24m
Kết cấu ngôi nhà: 1 trệt 1 lầu gồm 4 phòng ngủ, 1 phòng khách, 1 phòng thờ, 1 khu vực bếp, 3 WC, Sân trước, sân sau và Ban Công.

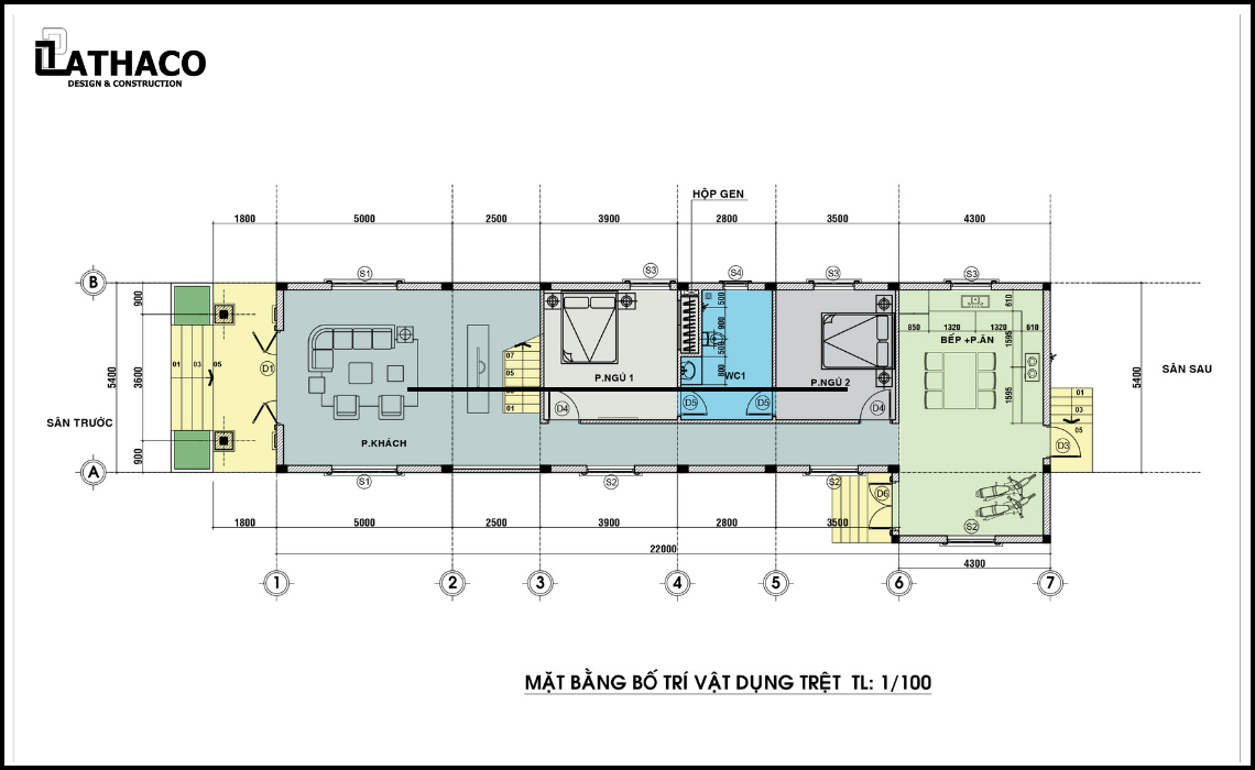
Bản vẽ thiết kế tầng trệt
Tầng một mặt bằng nhà 5,4x24m 1 trệt 1 lầu bao gồm: sân trước, phòng khách, phòng bếp + ăn, phòng ngủ, WC chung.
- Tầng một sẽ có 1 khoảng sân nhỏ, để làm giảm bớt hiệu ứng nắng gắt trước khi vào nhà. Tiếp đến là không gian phòng khách và phòng ăn được phân chia bởi vách ngăn nhằm hạn chế mùi đồ ăn. Một nhà vệ sinh được đặt tại gần đó để tiện cho việc sử dụng.
- Cuối nhà là phòng ngủ dành cho bố mẹ đỡ cho việc leo cầu thang vì có tuổi. Bên cạnh đó có 1 giếng trời nhỏ để làm tiểu cảnh, và cũng là nơi giấu những ống kỹ thuật trong nhà.

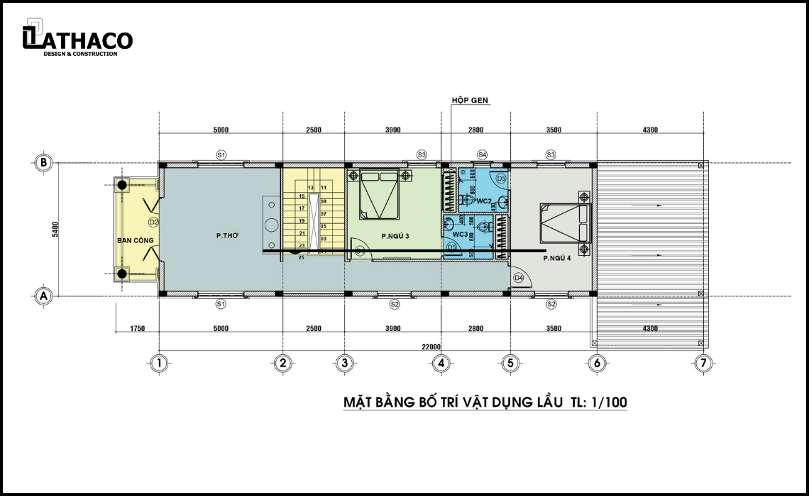
Bản vẽ thiết kế tầng lầu
Nhà 1 trệt 1 lầu được bố trí tầng lầu gồm: 2 phòng ngủ, phòng sinh hoạt chung, phòng thờ, 2 WC.
- Thiết kế phòng ngủ master rộng rãi có nhà vệ sinh riêng để đảm bảo sự riêng tư cũng như không gian nghỉ ngơi yên tĩnh. 2 phòng ngủ còn lại dành cho con và khách đến chơi, với nội thất tiện nghi và sử dụng chung 1 nhà vệ sinh ở bên ngoài.
- Phòng sinh hoạt chung được thiết kế ngay khoảng cầu thang đi lên thuận tiện cho các thành viên trong gia đình quây quần bên nhau vào mỗi tối.
- Phòng thờ nhỏ hướng ra ban công thoáng mát, đồng thời hợp với phong thủy để không gian thờ cúng trở nên trang nghiêm hơn.
2. Thiết kế nhà phố mái Thái 1 trệt 1 lầu phong cách hiện đại

Bản vẽ phối cảnh thiết kế nhà mái thái 1 trệt 1 lầu
Mẫu nhà 1 trệt 1 tầng mái thái nó tối giản về kiến trúc nhưng không vì thế mà làm mất đi vẻ sang trọng và lộng lẫy của ngôi nhà, các kiến trúc sư đã vận dụng những hình khối trong thiết kế để khiến cho người xem tạo thấy một ngôi nhà rộng hơn, sử dụng triệt để diện tích mặc dù diện tích không quá lớn. Các kiến trúc sư đã sử dụng một số họa tiết cho cánh cửa hay lang can của ngôi nhà, điều này góp phần tạo nên sự lộng lẫy cho mẫu nhà này.
Các ưu điểm của nhà mái Thái 1 trệt 1 lầu:
- Mẫu nhà 1 trệt 1 lầu mái thái này giúp cho gia chủ có thể tiết kiệm được chi phí cũng như diện tích cải thiện được cuộc sống của bạn.
- Chi phí để xây dựng một ngôi nhà 1 trệt 1 lầu mái thái không quá cao, thích hợp với mức thu nhập của tất cả các khách hàng từ thấp đến cao, đáp ứng được những nhu cầu khác nhau của hầu hết các gia đình.
- Mái thái mang vẻ đẹp hiện đại, không bị lỗi thời qua các năm mà chi phí để xây dựng cũng không quá cao
- Thời gian xây dựng một ngôi nhà 1 trệt 1 lầu mái thái khá ngắn, không làm mất quá nhiều thời gian cho gia chủ
3. Thiết kế nội thất của mẫu nhà mái thái 1 trệt 1 lầu mang phong cách hiện đại
3.1. Thiết kế nội thất phòng khách mẫu nhà 1 trệt 1 lầu

Mẫu thiết kế phòng khách phong cách hiện đại
Phòng khách mẫu thiết kế nhà 1 trệt 1 lầu được trang trí với tông màu trắng nhẹ nhàng, kết hợp nội thất đơn giản bắt mắt tạo không gian đầy cuốn hút. Bộ ghế sofa màu xám đơn giản nhưng hài hòa với không gian tổng thể của phòng khách.
Gầm cầu thang được tận dụng để làm kệ trang trí và kệ tivi giúp tiết kiệm diện tích, đem lại không gian sinh hoạt rộng rãi hơn cho căn phòng.
3.2. Thiết kế nội thất phòng bếp

Mẫu thiết kế nội thất phòng bếp mang phong cách hiện đại
Sự pha trộn giữa màu trắng và màu gỗ giúp cho căn phòng bếp trở nên sang trọng và ấm cúng. Thiết kế tủ bếp chữ L ôm sát tường nhằm tiết kiệm không gian và bàn ăn tròn đơn giản, gọn gàng tiện cho việc dọn dẹp.
Những chi tiết trang trí nội thất cho phòng bếp được bài trí một cách khoa học, khéo léo nhằm tạo nên hiệu ứng tốt nhất về thị giác và cảm giác.
3.3. Thiết kế nội thất phòng ngủ
Ngoài sự yên tĩnh, riêng tư cần thiết, không gian phòng ngủ cũng đòi hỏi tính thẩm mỹ, các đồ nội thất cần được lựa chọn kỹ càng nhằm đảm bảo sức khỏe cho chủ nhân căn phòng. Chính vì vậy, chủ nhân của ngôi nhà đã sử dụng toàn bộ sàn gỗ cho phòng ngủ, đem đến sự gần gũi ấm áp trong không gian.

Mẫu thiết kế nội thất phòng ngủ mang phong cách hiện đại
Không gian phòng ngủ lãng mạn rất thích hợp dành cho những vợ chồng mới cưới. Bức ảnh cưới được treo ngay đầu giường không chỉ giúp tô điểm cho căn phòng mà còn khiến gia chủ gợi nhớ lại khoảnh khắc hạnh phúc nhất. Một bộ bàn ghế gỗ được đặt trong phòng để 2 vợ chồng có thể vừa ngồi nhâm nhi tách trà vừa nói chuyện với nhau.
3.4. Thiết kế nội thất phòng sinh hoạt chung

Mẫu thiết kế nội thất phòng sinh hoạt mang phong cách hiện đại
Là không gian sum họp, giải trí của cả gia đình, phòng sinh hoạt chung giữ vai trò quan trọng trong việc gắn kết các thành viên trong nhà.
Cách trang trí phòng sinh hoạt chung cũng ở mức đơn giản, vừa đủ, nội thất gọn gàng không quá rườm rà. Gam màu trắng sáng xuyên suốt với kiến trúc tổng thể không gian nhà phố, tạo sự hài hòa và mang đến không khí vui tươi cho cả nhà.
3.5. Thiết kế nội thất phòng thờ

Mẫu thiết kế nội thất phòng thờ mang phong cách hiện đại
Nội thất gỗ luôn được sử dụng cho căn phòng thờ bởi vẻ đẹp cao cấp, thể hiện sự thành kính đối với ông bà, gia tiên. Đồng thời giúp cho gian phòng thời trở nên trang trọng hơn.
3.6. Thiết kế nội thất phòng tắm

Mẫu thiết kế nội thất phòng tắm mang phong cách hiện đại
Kiến trúc sư đã lựa chọn vật liệu đá tự nhiên cho sàn và tường giúp đem đến hiệu ứng thẩm mỹ cho toàn bộ không gian. Nội thất nhỏ gọn được bố trí ngăn nắp ở tủ âm tường tạo độ thoáng rộng hơn cho không gian.
4. Công ty thiết kế và xây dựng nhà trọn gói tại Bình Dương Lathaco
Để có được một căn nhà đẹp ưng ý, việc lựa chọn đơn vị thiết kế và thi công nhà là vô cùng quan trọng. Lathaco tự hào là đơn vị thiết kế thi công xây dựng hàng đầu tại Bình Dương.
Với hơn 7 năm kinh nghiệm, Lathaco sở hữu đội ngũ Kiến Trúc Sư, Kỹ Sư dày dặn kinh nghiệm có sự sáng tạo và thẩm mỹ cao, thi công xây dựng chất lượng và dịch vụ chuyên nghiệp. Đơn vị tự hào mang lại cho nhiều gia chủ những công trình xây dựng chất lượng, những thiết kế biệt thự sở hữu không gian sống đầy tiện nghi theo sở thích riêng của từng gia chủ.
Để được tư vấn thiết kế và thi công xây dựng một cách nhanh nhất, đảm bảo hiện thực hóa được đúng nhu cầu và sở thích của gia đình, anh chị và các bạn có thể liên hệ:
CÔNG TY TNHH THIẾT KẾ – XÂY DỰNG – THƯƠNG MẠI LẬP THẠCH PHÁT
- Hotline: 0971.067.047
- Email: tuanlap15kt16@gmail.com
- Địa chỉ: Số 607/8/1, Tổ 11, An Thuận, Phú An, Bến Cát, Bình Dương
- Website: www.lathaco.com




