DỰ ÁN THIẾT KẾ VÀ XÂY DỰNG BIỆT THỰ SÂN VƯỜN TRỌNG GÓI CHO NHÀ CHÚ PHƯƠNG BẾN CÁT BÌNH DƯƠNG
Đây là mẫu nhà biệt thự sân vườn đẹp theo phong cách thiết kế hiện đại được Lathaco thực hiện thiết kế và thi công cho gia đình chú Phương tại Bến Cát, Bình Dương. Mời các anh, chị và các bạn cùng xem và trải nghiệm qua sản phẩm này nhé.
1. Thông tin dự án – Thiết kế biệt thự sân vườn đẹp
Khách hàng: Chú Phương
Địa chỉ: Bến Cát, Bình Dương
Phong cách thiết kế: Biệt thự 2 tầng mái Thái đẹp hiện đại
Diện tích xây dựng: 23.2m x 10m
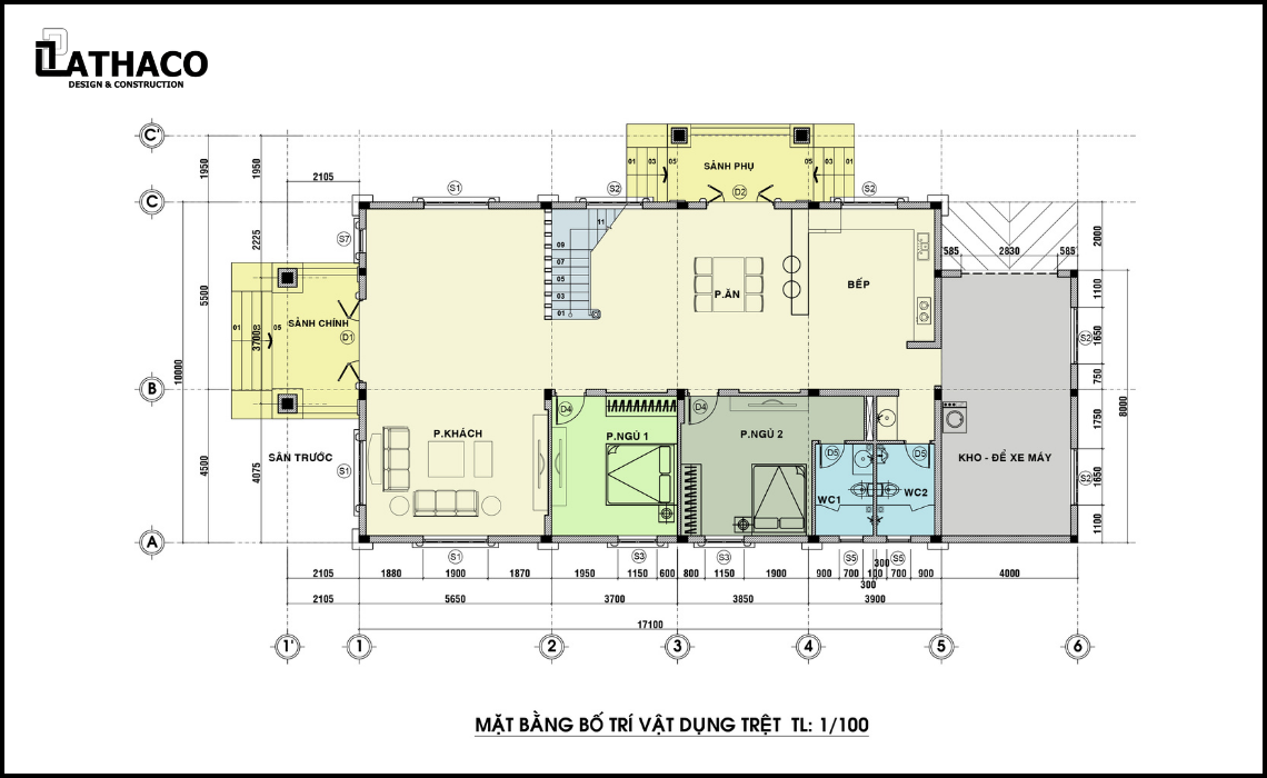
Kết cấu tầng trệt: gồm sảnh chính, 1 phòng khách, khu vực bếp và phòng ăn, 2 phòng ngủ, 1 WC và kho để xe máy.

Bản vẽ thiết kế tầng trệt
- Bước vào từ sảnh chính là không gian phòng khách thông thoáng rộng rãi. Phía sau phòng khách là khu vực bếp và nhà ăn với thiết kế không gian mở cùng những vật dụng nội thất sang trọng. Khu vực bếp chữ L rộng rãi thuận tiện cho việc nấu nướng.
- Tiếp đến là hai phòng ngủ rộng rãi và tiện nghi phòng ngủ chính có nhà vệ sinh riêng để tạo sự riêng tư cho gia chủ.
- Kho để xe giúp bảo vệ những chiếc xe khỏi nắng mưa và có thể tận dụng làm kho chứa đồ vô cùng hiệu quả.
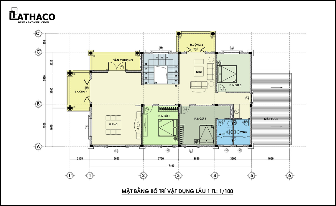
Kết cấu lầu 1: gồm phòng thờ, phòng sinh hoạt chung, 3 phòng ngủ, 2 WC.

Bản vẽ thiết kế lầu 1
- Vừa bước lên cầu thang là phòng sinh hoạt chung rộng rãi được bày trí sofa và tivi,… đây là nơi sinh hoạt, vui chơi của các thành viên trong gia đình và thông với ban công tạo cảm giác thông thoáng.
- Phòng thờ với ban công thông thoáng là nơi thể hiện sự trang nghiêm, thành kính của gia chủ với tổ tiên. Đối diện phòng thờ là sân thượng gia chủ có thể trồng cây và hoa giúp tăng thêm sự tươi mát cho ngôi nhà.
- Phòng ngủ chính được thiết kế rộng rãi thông thoáng, có nhà vệ sinh riêng, tạo sự thoải mái và riêng tư khi sử dụng. Hai phòng ngủ còn lại cũng rộng rãi không kém thích hợp dùng làm phòng ngủ cho con hoặc dùng làm phòng khách.
2. Thiết kế mẫu nhà biệt thự đẹp mang phong cách hiện đại

Bản vẽ phối cảnh thiết kế mặt trước

Bản vẽ phối cảnh thiết kế mặt bên
Các kiến trúc sư đã tận dụng tối đa không gian, với bất kỳ vị trí nào trong ngôi biệt thự đều được sử dụng triệt để, tạo không gian rộng rãi, thoáng mát, tiện nghi và khẳng định được đẳng cấp của gia chủ. Mẫu nhà biệt thự với lối thiết kế sang trọng đẳng cấp và sử dụng một số họa tiết cho phần cột và tường, điều này góp phần tạo nên sự lộng lẫy, sang trọng.
Phần mái Thái được thiết kế hiện đại, mang lại cái nhìn tổng thể khỏe khoắn và sang trọng. Từng đường nét, hình khối thiết kế được hòa quyện với nhau, kết nối với phong cách trẻ trung, tôn lên vẻ đẹp tự do cho ngôi biệt thự. Đặc biệt, mái Thái dốc có khả năng chống thấm nước tốt, nhiều kiểu dáng để bạn lựa chọn và đặc biệt là khả năng chống nóng tốt vào mùa hè.
Phần sân vườn rộng gần gũi với thiên nhiên, không khí trong lành. Đây sẽ là nơi nghỉ dưỡng lý tưởng cho cả gia đình
3. Thiết kế nội thất biệt thự đẹp
3.1. Nội thất phòng khách biệt thự
Phòng khách biệt thự là gương mặt đại diện của ngôi nhà đón tiếp khách quý ghé thăm. Đây còn là không gian sinh hoạt chung của các thành viên trong gia đình quây quần bên nhau, nói chuyện vui vẻ. Vì vậy, các gia chủ rất chú trọng đến việc bố trí thiết kế nội thất không gian phòng khách.
Đồ gỗ luôn mang đến sự sang trọng nhưng vẫn có nét mộc mạc, thanh thoát và thân thiện với con người. Đây là chất liệu vẫn luôn được người dân yêu thích sử dụng cho các đồ dùng trong nhà và trong nội thất.

Thiết kế nội thất phòng khách biệt thự đẹp
Thiết kế nội thất phòng bếp tiện nghi, ấm cúng
Việc thiết kế phòng bếp tuân thủ những nguyên tắc về vị trí và hướng phong thủy. Căn phòng bếp, bàn ăn sẽ được thiết kế liên thông với nhau tạo “không gian mở” rộng rãi, thoáng mát. Điều này giúp gia tăng vượng khí, thu hút tài lộc và may mắn cho tất cả các thành viên trong gia đình. Nội thất phòng bếp được sắp xếp gọn gàng, sạch sẽ như tủ bếp, bếp đảo, bồn rửa, tủ lạnh, lò vi sóng, máy hút mùi,… Ngoài ra, có thể bày trí thêm một tủ nhiều ngăn để trưng bày rượu và các đồ vật khác vô cùng sang trọng, giúp thể hiện phong cách của gia chủ.

Thiết kế nội thất phòng bếp tiện nghi, ấm cúng
Thiết kế nội thất phòng ngủ hiện đại, thư giãn
Phòng ngủ là không gian riêng tư nên thiết kế nội thất được trau chuốt đặc biệt. Tông màu gỗ tạo cảm giác ấm cúng và không kém phần sang trọng. Những vật dụng nội thất cơ bản không thể thiếu trong phòng ngủ gồm giường, tab đầu giường, kệ tivi, tủ quần áo, bàn làm việc hay bàn học,… Tất cả đều được thiết kế tỉ mỉ phù hợp với thói quen sinh hoạt của gia đình.

Mẫu thiết kế nội thất phòng ngủ biệt thự ấm cúng

Mẫu thiết kế nội thất phòng ngủ biệt thự đẹp, thư giãn
Thiết kế nội thất phòng thờ biệt thự trang nghiêm, thanh tịnh
Phòng thờ trang trí theo tông màu chủ đạo là trắng và nâu của gỗ. Cách trang trí tối giản nhưng mang lại hiệu ứng tốt. Ngoài ra, đèn chùm được chọn trang trí phía trên trần nhà vừa cung cấp ánh sáng vừa mang lại vẻ đẹp thanh lịch cho phòng thờ. Những phòng thờ có hướng ánh sáng thì có thể dùng thêm rèm vừa tăng vẻ đẹp vừa che được ánh sáng vào những khung giờ nắng gắt.
Thiết kế nội thất phòng thờ biệt thự trang nghiêm, thanh tịnh
4. Công ty thiết kế và xây dựng nhà trọn gói tại Bình Dương Lathaco
Để có được một căn biệt thự đẹp ưng ý, việc lựa chọn đơn vị thiết kế và thi công nhà là vô cùng quan trọng. Lathaco tự hào là đơn vị thiết kế thi công xây dựng hàng đầu tại Bình Dương.
Với hơn 7 năm kinh nghiệm, Lathaco sở hữu đội ngũ Kiến Trúc Sư, Kỹ Sư dày dặn kinh nghiệm có sự sáng tạo và thẩm mỹ cao, thi công xây dựng chất lượng và dịch vụ chuyên nghiệp. Đơn vị tự hào mang lại cho nhiều gia chủ những công trình xây dựng chất lượng, những thiết kế biệt thự sở hữu không gian sống đầy tiện nghi theo sở thích riêng của từng gia chủ.
Để được tư vấn thiết kế và thi công xây dựng một cách nhanh nhất, đảm bảo hiện thực hóa được đúng nhu cầu và sở thích của gia đình, anh chị và các bạn có thể liên hệ:
CÔNG TY TNHH THIẾT KẾ – XÂY DỰNG – THƯƠNG MẠI LẬP THẠCH PHÁT
- Hotline: 0971.067.047
- Email: tuanlap15kt16@gmail.com
- Địa chỉ: Số 607/8/1, Tổ 11, An Thuận, Phú An, Bến Cát, Bình Dương
- Website: www.lathaco.com




